PHILIPPINE AUTOCAD OPERATOR
Leader in providing AutoCAD and drafting outsourcing services in Philippines
 
Philippine Autocad Operator - About Us Philippine Autocad Operator - Our Services Philippine Autocad Operator - Our Project Philippine Autocad Operator - Our Render Philippine Autocad Operator - Contact Us
Philippine Autocad Operator has positioned itself as your best choice for cad drafting outsourcing services for owner-builders, Architects, Engineers and Contractors of all sizes in Philippines. Philippine Autocad Operator deliver high quality CAD drafting services at a reasonable price, always on time, for customers nationwide. Philippine Autocad Operator team works closely with clients to ensure satisfaction. Philippine Autocad Operator have perfected the way we seamlessly communicate with our clients to deliver exceptional CAD services. Philippine Autocad Operator have the capacity to undertake large and small CAD design and CAD drafting projects, on demanding deadlines, and produce professional CAD drawings to your standards. Philippine Autocad Operator are ready to help and assist you.
 

 

 

 

 

MAIN MENU
ROOF LAYOUT PLAN
SECOND FLOOR PLAN
GROUND FLOOR PLAN
BASEMENT-1 FLOOR PLAN
REFLECTED CEILING SECOND FLOOR PLAN
REFLECTED CEILING GROUND FLOOR PLAN
REFLECTED CEILING
BASEMENT-1 FLOOR LAYOUT PLAN

FRONT ELEVATION
LEFT SIDE ELEVATION
RIGHT SIDE ELEVATION
REAR ELEVATION
SECTION THU "A"
SECTION THU "B"
DOOR BLOW-UP DETAIL
WINDOW DETAIL
MASTER BED ROOM WALK-IN CLOSET DETAIL
KITCHEN COUNTER DETAIL
STAIR BLOW-UP DETAIL
CONNECTION DETAIL
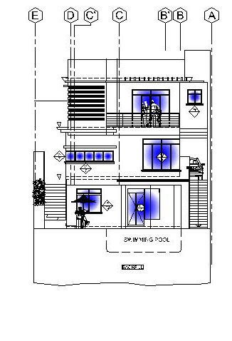
SWIMMING POOL DETAIL
SECOND FLOOR MASTER BED ROOM T & B DETAIL
GROUND FLOOR POWDER ROOM DETAIL
BASEMENT TOILET DETAIL
AESTHETIC TRELLIS DETAIL
SECOND FLOOR BED ROOM 2 T & B DETAIL
 

 

REAR ELEVATION
 


 

Philippine Web Solutions - Web Hosting Package   Philippine Web Solutions - Web Design   Philippine Web Solutions - Web Graphic Design   Philippine Web Solutions - Search Engine Optimization   Philippine Web Solutions - Network Tutorial   Philippine Web Solutions - Philippine Cebu Web Solution   Philippine Web Solutions - Cebu Web Design   Philippine Web Solutions - Cebu Search Engine Optimization

Copyright 2010. Philippine AutoCAD Operator. All Rights Reserved.
If you have questions, inquiries, suggestions, comments, Please email us at info@philippineautocadoperator.com or mail us to;
PO Box Osmeņa St., Lapu-Lapu City.
Thank You and God Bless!